Your search returned no results
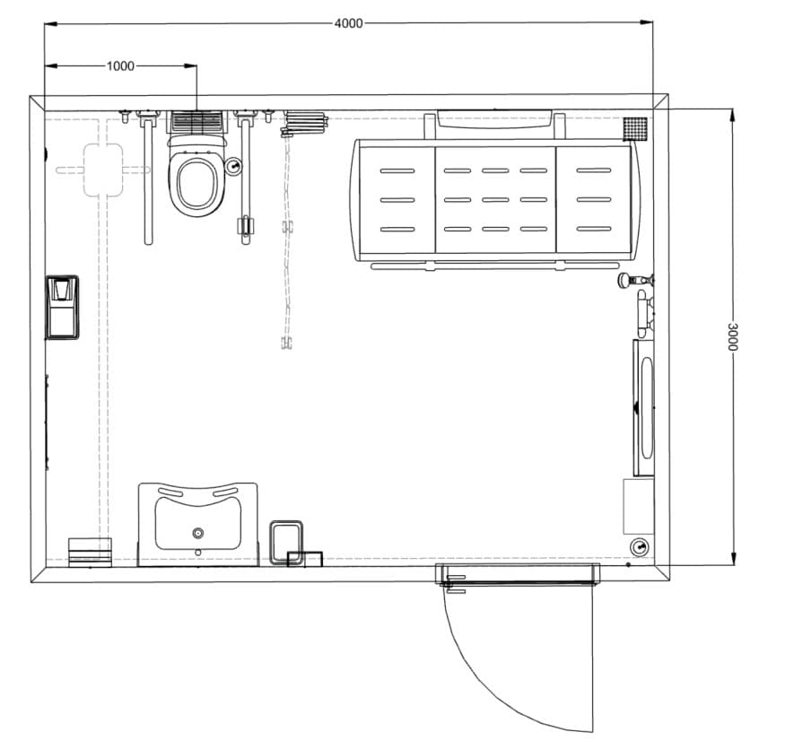
Changing Places restrooms are essential for providing dignity, comfort, and accessibility to individuals with severe disabilities. To ensure these facilities meet the highest accessibility standards, compliance withEN 17210:2021 is crucial.
This European standard outlines the key requirements for space, equipment, safety, and usability to create truly inclusive environments.

Being regulatory compliant in the context of Changing Places facilities means ensuring that restrooms are designed, equipped, and maintained in accordance withEN 17210:2021 and other relevant accessibility standards.
Compliance guarantees that these spaces are safe, accessible, and functional for individuals with disabilities, their caregivers, and family members. It involves adhering to requirements for space, equipment, safety, hygiene, and privacy, ultimately creating an environment that promotes inclusivity and dignity.
At Pressalit, we go the extra mile to make buildings accessible and usable for people with disabilities. We offer products and services that meet the EN 17210:2021 standards for accessibility. This standard helps implement the United Nations Convention on the Rights of Persons with Disabilities in Europe.
When designing bathrooms for people with disabilities, there are important requirements to consider. Pressalit provides the necessary products and advice to meet these requirements, following the CEN/TR 17621:2021 functional guidelines, to ensure accessible and usable toilets and changing places.
Often, meeting EN 17210 standards goes beyond the basic requirements of current building codes. We recommend that customers verify and follow local regulations to ensure their facility meets all applicable requirements in their region.
Pressalit specialises in designing and equipping Changing Places restrooms that meet regulatory standards while ensuring optimal comfort and accessibility. Get in touch with our experts today for a detailed guide on compliance and best practices.

Understanding Changing Places
Learn why a Changing Places facility is important and what it is
Who & where
Read more about the people and places that benefit from Changing Places
Products & solutions
See our wide range of products and solutions for Changing Places
Regulatory compliance
Let us help you understand and comply with your local guidelines and legislation.
Step-by-step consultancy
We will help you with anything in the process from design to implementation
Let us be the experts so you don't have to be!
More on Changing Places by Pressalit